ID CP2718052

WIN Herastrau apartament 3 camere 2 băi loc de parcare

ID CP2718052

430,000 € (negociabil)

Apartament cu 3 camere de vânzare
Herastrau, Bucuresti
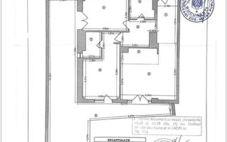
75.6 mp
2022

Apartament superb situat ideal în fata parcului Herastrau :

✅Living generos cu suprafețe vitrate mari și vedere libera spre spațiile verzi

✅master bedroom cu baie proprie

✅un al doilea dormitor cu baie pe hol

✅două terase

✅Un loc de parcare și o boxă în subsol întregesc această proprietate

Citește mai mult

  • Tip apartament
    Apartament
  • Număr camere
    3
  • Dormitoare
    2
  • Număr bucătării
    1
  • Număr băi
    2
  • Suprafață utilă
    75.6 mp
  • Suprafață construită
    101.4 mp
  • Suprafață totală
    84.3 mp
  • Suprafață terasă
    4.3 mp
  • Disponibilitate
    Imediat
  • Confort
    Lux
  • Stare interior
    Finisat modern
  • Număr terase
    2
  • Număr locuri parcare
    1
  • Imobil
    Bloc de apart.
  • Stadiu construcție
    Finalizată
  • An construcție
    2022
  • Construcție nouă
    Da
  • La revânzare
    Da

Facilități

Aer condiționat
Apă
Boxă la subsol
Bucătărie deschisă
Bucătărie mobilată
Bucătărie utilată
Cabină de duș
Cadă
Canalizare
CATV
Curent
Faianță
Frigider
Garaj subteran
Gaz
Gresie
Hotă
Iluminat stradal
Interfon
Internet
Mijloace de transport în comun
Parchet
Străzi asfaltate
Telecomandă poartă garaj
Telefon
Uși interior MDF
Maria-Luiza KERAUTRET
Manager

0742222423


Solicită chiar acum o vizionare
Telefon
Sună acum Solicită vizionare
Necesare:

Site-ul nu poate funcționa corect fără aceste cookie-uri. Vezi cookie-urile

Statistică:

Strângem statistici anonime despre voi, vizitatorii unici, pentru a vă îmbunătăți experiența dumneavoastră. Vezi cookie-urile

Marketing:

Pentru a ne promova mai eficient serviciile noastre, folosim cookies pentru a vă identifica și a vă oferi proprietăți și servicii personalizate. Vezi cookie-urile

Acest site folosește cookies, află detalii. Alege ce tipuri de cookies dorești să permitem: